
철강 구조 거터는 건물의 지붕 배수 시스템의 중요한 구성 요소입니다. 그들의 주요 기능은 지붕에서 빗물을 모아 수직 파이프로 지시 한 다음 실외 배수 시스템으로 배출하여 벽을 직접 침식하거나 기초를 담그는 것을 방지하는 것입니다. Liweiyuan의 제품 설계 및 설치는 높은 강도와 가벼운 무게로 특징 지워서 부드러운 배수와 탁월한 내구성을 보장합니다.
철강 구조 거터는 건물의 지붕 배수 시스템의 중요한 구성 요소입니다. 그들의 주요 기능은 지붕에서 빗물을 모아 수직 파이프로 지시 한 다음 실외 배수 시스템으로 배출하여 벽을 직접 침식하거나 기초를 담그는 것을 방지하는 것입니다. Liweiyuan의 제품 설계 및 설치는 높은 강도와 가벼운 무게로 특징 지워서 부드러운 배수와 탁월한 내구성을 보장합니다.
Liweiyuan의 철강 구조 거터는 부식성 및 충격에 강한 재료로 만들어졌습니다.
우리의 제품은 핫 다프 아연 도금으로 탁월한 부식 저항, 저렴한 비용 및 긴 서비스 수명을 제공합니다. 1.5-2.5 mm의 두께로 제공되며 대부분의 응용 분야에 적합합니다.
스테인레스 스틸로 만들어진이 제품은 부식성을 제공하며 특히 해안 또는 습한 환경에 적합합니다. 1.0-2.0 mm의 두께로 제공되며 가격은 더 높지만 서비스 수명이 길다.
우리의 색으로 코팅 된 강철 제품은 아연 도금 강철을 기반으로하며, 폴리 에스테르 또는 플루오로 카본과 같은 날씨에 저항성 코팅으로 코팅되어 부식 저항과 장식 효과가 모두 있습니다. 1.2-2.0 mm의 두께로 제공되며 높은 수준의 미적 매력이 필요한 건물에 적합합니다.
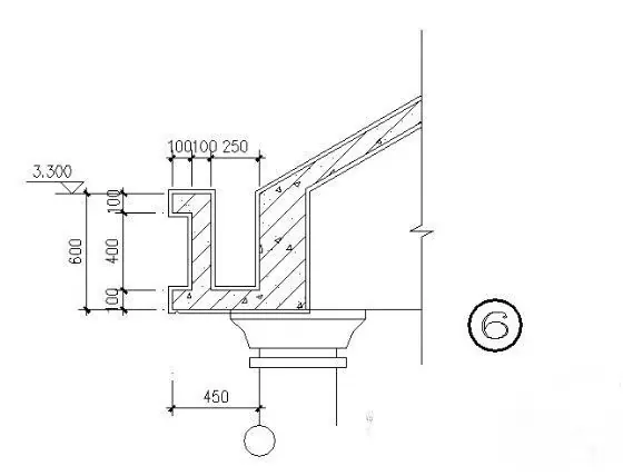
강철 구조 거터의 구조적 형태는 지붕 경사 및 처마 디자인에 적응해야합니다. 일반적인 유형에는 U 자형 및 V 자형이 포함됩니다. 설치 프로세스는 다음과 같습니다.
우리의 강철 구조 홈통은 앵글 강철 거터 브래킷을 사용하여 강철 구조의 처마 빔 또는 폴린에 고정합니다. 브래킷 간격은 600-1000mm이며 거터 전체의 응력 분포를 보장합니다.
완성 된 거터는 커넥터 또는 용접을 사용하여 사전 크기 및 연결 현장에 연결되어 있습니다. 거터와 지붕 데크 사이의 교차점에서 실란트가 필요합니다.
지붕 데크 위에 번쩍이는 것을 설치할 수 있습니다. 거터의 하단은 지붕 데크 아래에 놓고 실란트로 밀봉해야합니다. 주로 빗물 라이저와의 연결을 위해 배수구의 바닥에 배수 구멍이 제공되어야합니다.
당사의 강철 구조 거터 제조 공정에는 드로잉 치수, 굽힘, 페인팅, 완제품 검사, 포장 및 운송에 따른 절단이 포함됩니다. Liweiyuan의 강철 구조 홈통은 부식 저항, 부드러운 배수 및 내구성을 보장하여 효율적인 배수를 보장하기 위해 설계 및 설치되었습니다.